2.8.1 利用居室の出入口の設計標準
(1)出入口の有効幅員、空間の確保等
-
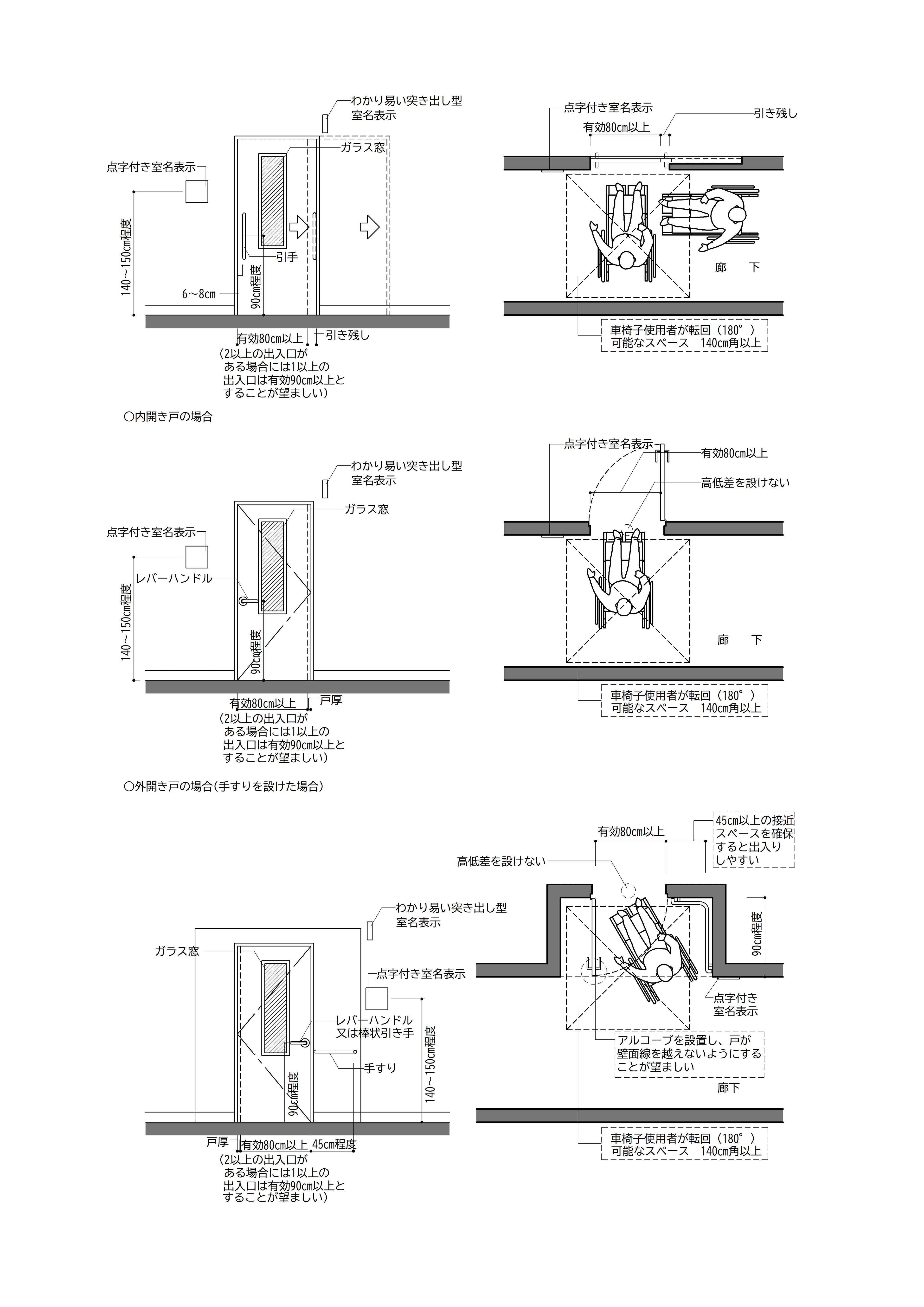
出入口の有効幅員は、80cm以上とする。
-
2以上の出入口を併設する場合には、そのうち1以上の出入口の有効幅員は、90cm以上とすることが望ましい。
留意点:開き戸の出入口の有効幅員・開口(枠)幅の設定方法
-
出入口の有効幅員は、戸を開けた状態で、開き戸の場合は戸の面と枠の一番狭い部分間の幅、引き戸の場合は戸の見込み面と枠の一番狭い部分間の幅(引き残しを含めない)である。このことは、利用居室に至る主要な経路上にある出入口についても同様である。
-
出入口の戸の丁番・ヒンジに、持出し吊り方式(ヒンジの軸心が戸面から外にある方式)のピポットヒンジを採用する場合、ヒンジ部分にクリアランスが生じるため、その分、有効幅員が小さくなることに留意して、出入口の戸の開口(枠)幅を計画することが必要となる。
-
特に利用居室に至る主要な経路上にある出入口については、枠開口寸法とあわせて、出入口の有効幅員も設計図書等に記入し、設計者・施工者自らがチェックすることが望ましい。
<一般的な丁番等の場合>
<持出し吊り方式のピポットヒンジの場合>

- 出入口前後には、車椅子使用者が直進でき、方向転回できるよう、140㎝角以上の水平なスペースを設ける。
(2)戸の形式
-
戸を設ける場合には、自動的に開閉する構造その他の車椅子使用者が容易に開閉して通過できる構造とし、かつ、その前後に高低差がないものとする。
-
開閉動作の難易度から見ると、引き戸の方が開き戸より使いやすく、また自動式の方が手動式より使いやすい。
-
自動式引き戸については、2.3.1 建築物の出入口の設計標準(2) ①を参照。
-
衝突等の危険防止のため、プライバシー上の問題がある場合等を除き、戸には、戸の反対側の様子がわかる窓を設けることが望ましい。
-
戸に設ける窓は、立位の利用者のほか、車椅子使用者や子ども等の存在がわかる高さ・位置とする。
-
ガラス戸の場合は、床から高さ35㎝程度までの部分を、車椅子のフットサポートあたりとして補強することが望ましい。
留意点:戸の認知のしやすさ
- 弱視者(ロービジョン)や色覚多様性のある人の視認性や、高齢者のわかりやすさを確保するため、戸及び取っ手は、戸と壁の色、又は取っ手と戸の色の明度、色相又は彩度の差の確保に配慮して選定することが望ましい
留意点:ガラス窓
-
聴覚障害者は、ノックをしてもその音がわからないため、部屋の中の様子がわかるように戸にガラス窓を入れる等の工夫をすることが望ましい。
-
戸にガラス窓を設けることは、児童や幼児にも居室内部の様子がわかる等、ユニバーサルデザインの視点からも望ましい。
① 手動式引き戸
-
車椅子使用者の通過を妨げるような敷居や溝を設けない。
-
取っ手は、棒状のものとする。
-
取っ手の中心高さは、床から90㎝程度とする。
-
補助取っ手をつけることが望ましい。
-
自閉式上吊り引き戸(ストッパー若しくは一時停止装置又は自動閉鎖時間の調整機能を持ち、閉まり際で減速するもの)とすることが望ましい。
手動式引き戸の例

② 開き戸
-
車椅子使用者の開閉動作等がしやすいよう、取っ手側には袖壁を設け、戸の前後には十分なスペースを設けることが望ましい。
-
ドアクローザーは、閉めはじめはゆっくり閉まる等、閉鎖作動時間が十分に確保され、かつ軽い力で操作できるものとする。
-
廊下の側面に、通路等に向かって開く戸を設ける場合には、当該戸の開閉により高齢者、障害者等の通行の安全上支障がないよう、必要な措置(十分なスペース(アルコーブ等)を設ける等)を講ずることが望ましい。
留意点:開き戸
-
ドアクローザーを設ける場合は、開閉速度が調整できるものが良い。
-
自動式開き戸は、突然開いたドアに衝突する危険があるため、使用しないことが望ましい。
内開き戸の例

外開き戸の例(手すりを設けた場合)

-
取っ手は、大きく操作性の良いレバーハンドル式、プッシュプルハンドル式又はパニックバー形式のものとする。
-
取っ手の設置高さは、床から90㎝程度とする。
留意点:取っ手
- 握り玉タイプのものは、高齢者、障害者等には使いにくいため使用しない。
使いやすい取っ手の例
○棒状 ○プッシュプルハンドル ○レバーハンドル ○パニックバー

(3)仕上げ等
① ガラス
- ガラスについては、2.3.1 建築物の出入口の設計標準(2)を参照。
(4)案内表示
① 設置位置
-
戸の取っ手側の壁面又は出入口の戸に、利用居室の名称等を表示する。
-
室名表示の設置高さは、床から140~150㎝程度とする。
② 文字等による室名表示
-
室名表示は、大きめの文字を用いる、漢字以外にひらがなを併記する、図記号等を併記する等、高齢者、障害者等にわかりやすいデザインとする。
-
室名表示は、文字・図記号、図、背景の色の明度、色相又は彩度の差を確保したものとすることが望ましい。
-
表示板等については、2.14 G 案内表示を参照。
③ 文字の浮き彫りや点字による室名表示
-
客室や、視覚障害者の利用が多い用途の利用居室の室名表示は、文字の浮き彫りとする、又は点字を併記する等、視覚障害者の利用に配慮したものとする。
-
その他の用途の建築物の利用居室においても、室名表示は、文字の浮き彫りとする、又は点字を併記する等、視覚障害者の利用に配慮したものとすることが望ましい。
-
廊下等に手すりを設ける場合には、施設用途を考慮した上で、点字による室名表示を手すりに設けることが望ましい。
-
点字表示については、JIS T 0921を参照。
室名表示の例

設計例
